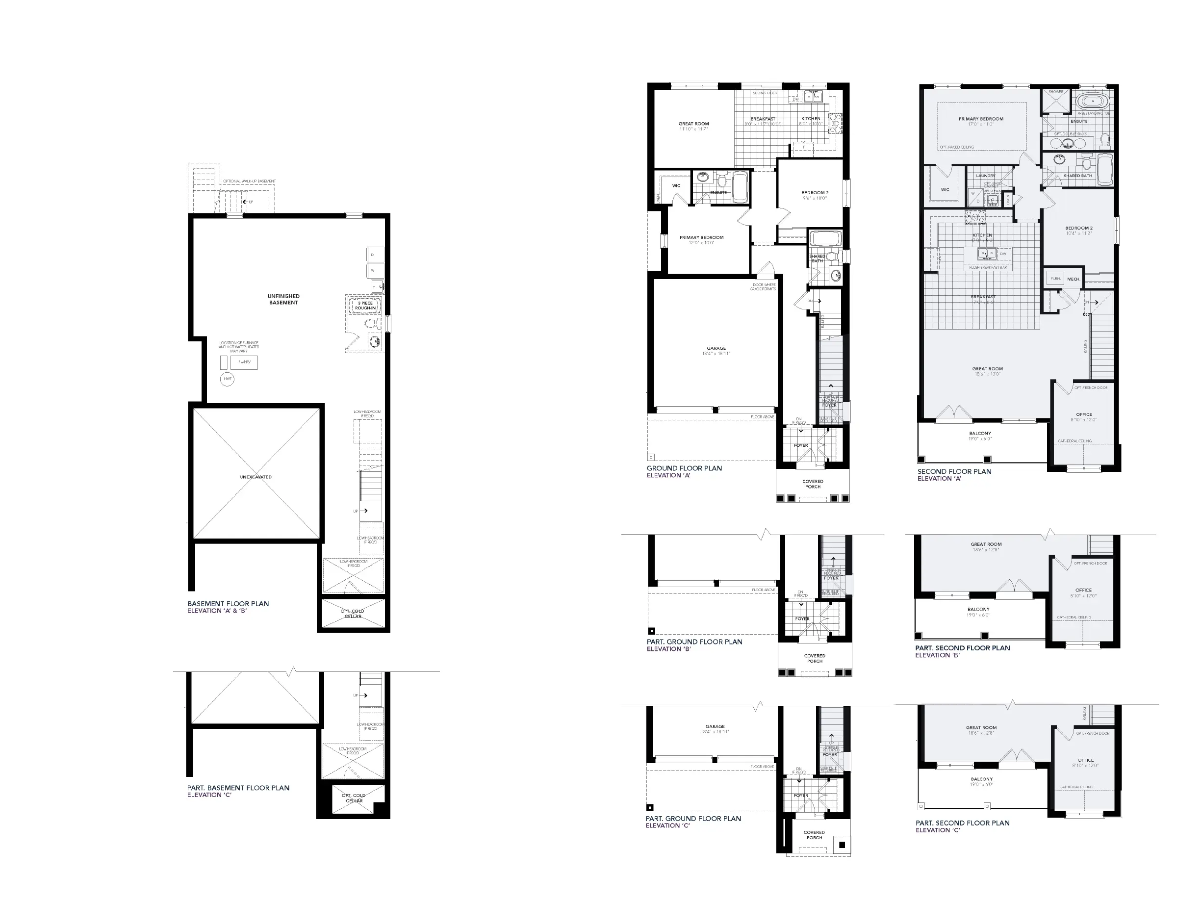
The Poplar (36-9)

36' Series

2,665 Sq.Ft

2 Bedrooms

Floorplans

How did you hear about us?

Now Selling
Hours

Monday - Thursday: 1:00 PM - 7:00 PM

Friday: Closed

Saturday - Sunday: 11:00 AM - 5:00 PM

Sales office

12 Neil Promenade Road, Caledon ON

T. 905-595-9139

ellislane@poetryliving.com