Home
About
Models
Gallery
Amenities
Site Plan
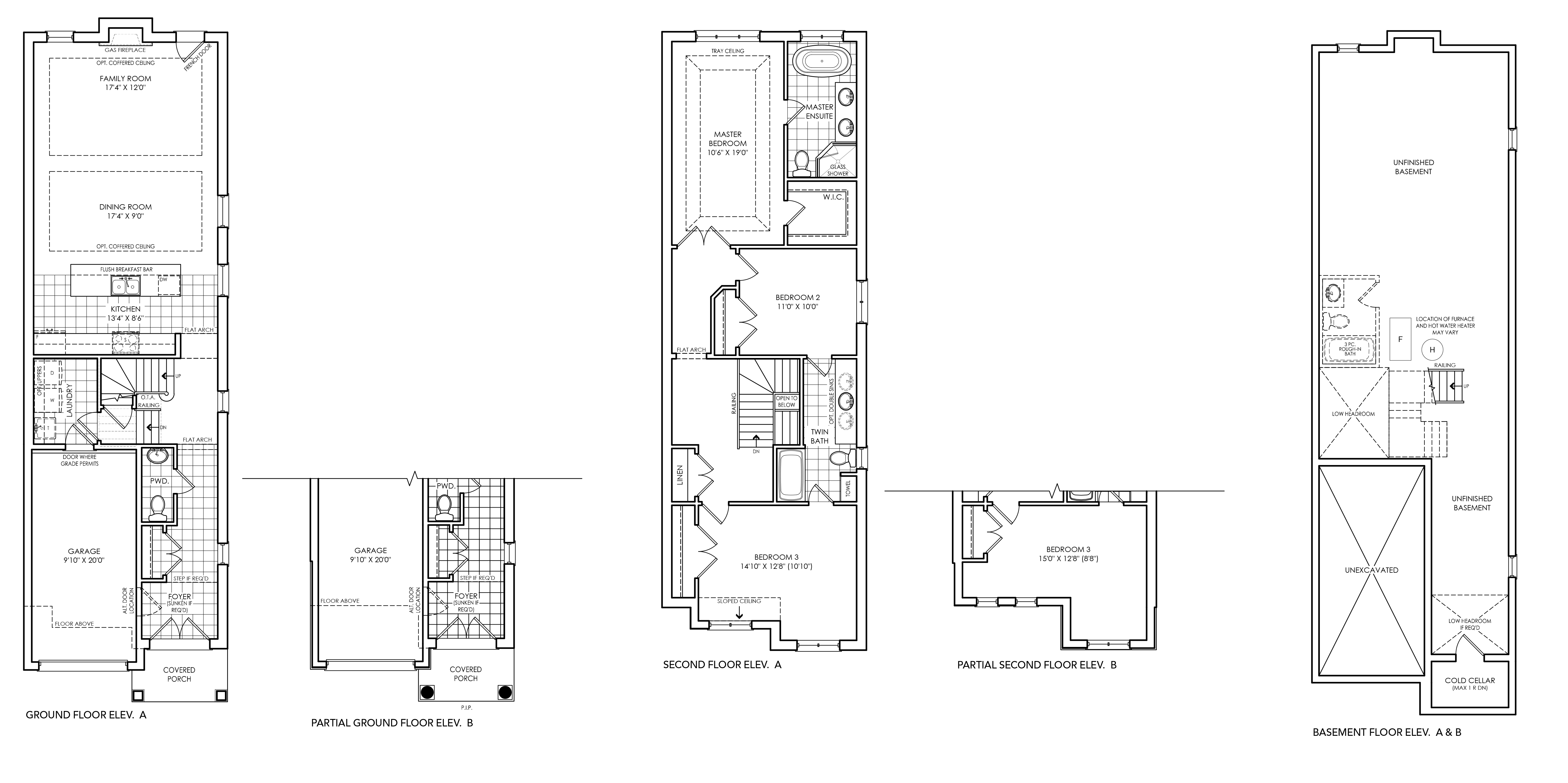
The Blake
25' Series
3 Bedrooms
Elev. A
Elev. B
Floorplans