Home
About
Models
Gallery
Amenities
Site Plan
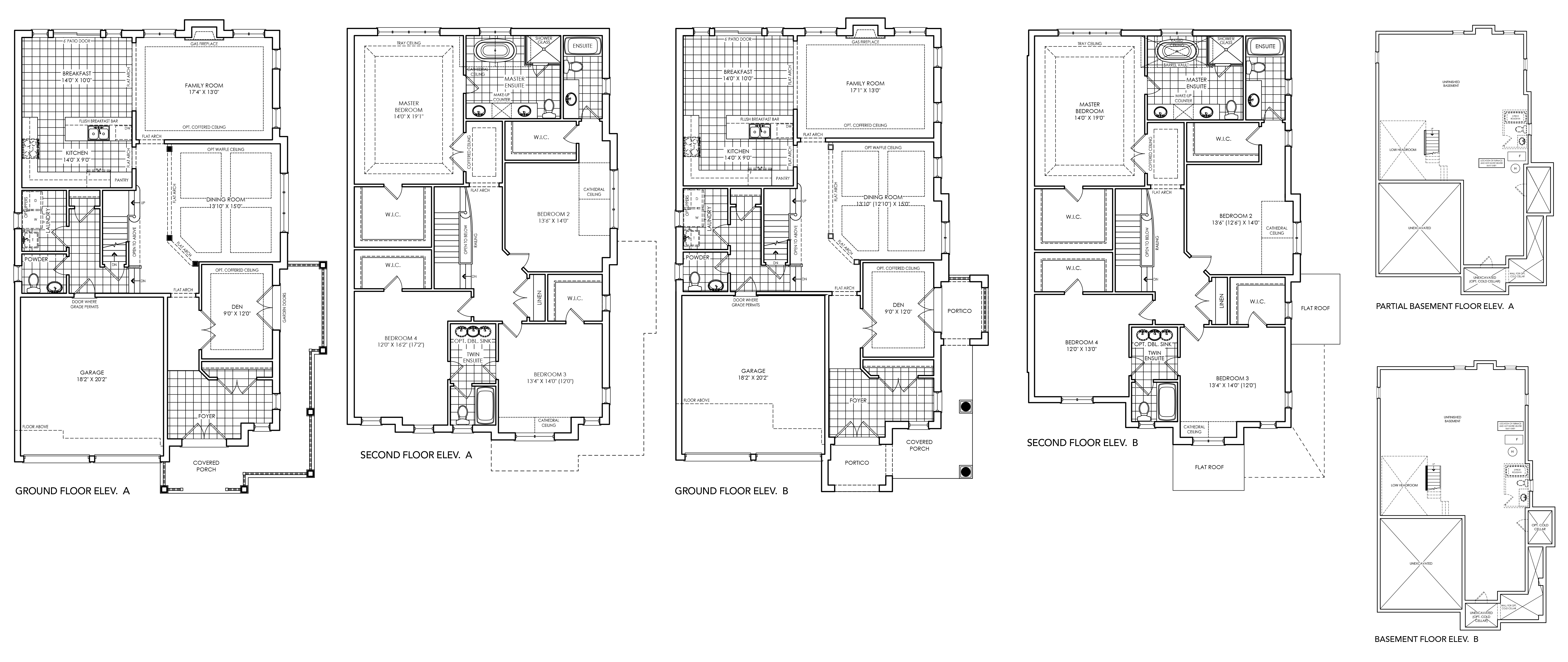
The Frost
40' Series
4 Bedrooms
Elev. A
Elev. B
Floorplans